Descrizione
**Appartamento in Vendita in Porta Romana- Milano (it-IT)**
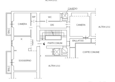
a pochi passi dall’arco di Porta Romana scopri questo splendido appartamento situato in un elegante palazzo d’epoca in stile Liberty, perfettamente ristrutturato e pronto per essere abitato. Con una superficie di 115 mq, questo secondo piano con ascensore offre spazi luminosi e raffinati, grazie alle finiture di pregio e al parquet di rovere e con soffitti alti che caratterizza tutte le stanze. L’ingresso si apre su un disimpegno che conduce a una cucina e una sala accoglienti, ideali per momenti di convivialità.
L’appartamento dispone di due camere da letto spaziose e un ampio bagno, oltre a un pratico ripostiglio. Tre balconi, di cui due affacciati su viale Monte Nero, regalano una vista suggestiva e un’ottima esposizione solare. La cantina al piano interrato offre ulteriore spazio per riporre oggetti. Inoltre, la predisposizione per l’impianto di condizionamento e il riscaldamento centralizzato garantiscono il massimo comfort in ogni stagione.
Con spese condominiali annuali euro 2.800 compreso il riscaldamento, servizio di portineria full time, questa proprietà è l’ideale per chi cerca un’abitazione elegante e funzionale nel cuore di Milano. in zona Terme Porta Romana, Metrò linea gialla, supermercati e negozi e ristoranti caratteristici della zona. Non perdere l’occasione di visitare questo gioiello immobiliare: disponibilità immediata!
Caratteristiche specifiche
- 115 M² commerciali
- 110 M² calpestabili
- 3 locali
- 1 bagno
- Balcone
- Seconda mano/Buono stato
- Cantina
- Est, Ovest
Costruzione
- Anno di costruzione: 1930
- palazzo liberty
Dotazioni
- Climatizzazione
- ascensore
- portineria
- impianti certificati
Prezzo
- prezzo euro 850.000
